Sie sind hier: Mietobjekte Würenlingen Buchenweg  
 MIETOBJEKTE
Brugg Habsburgerstrasse 52 + 50d, Mietwohnung
Würenlingen Buchenweg
Brugg Zelgstrasse 11
Würenlingen Wolfackerweg 1, Mietwohnung
Baden Nordhaus
Autoabstellplätze

WÜRENLINGEN BUCHENWEG

Mietwohnungen

FREIE WOHNUNG
Buchenweg 2 + 4 +10

Detailierte Angaben erhalten Sie unter www.buchenweg-wuerenlingen.ch

2.5 bis 4.5 Zimmerwohnungen




 

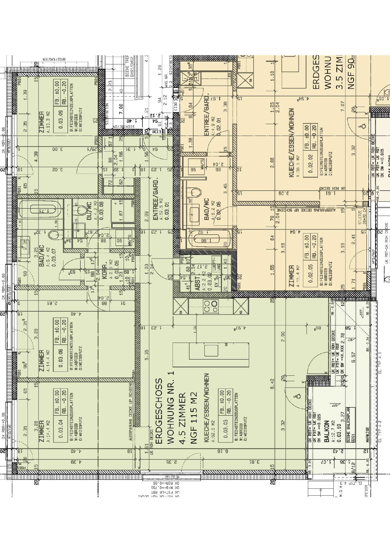
Wohnung Nr. 1

Erdgeschoss
Wohnung Nr. 1
4.5 Zimmerwohnung
NGF 115 m2
Sitzplatz gedeckt 13 m2




 

4.5 Zimmerwohnung